売買 【サンセットビーチが目の前】4DKの木造住宅
- 所在地
- 福井県坂井市三国町宿3丁目9-11(No.6-35)
- 物件種別
- 土地・物件
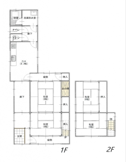
- 間取り
- 4DK
- 価格
- 売買700万円
POINT
- えちぜん鉄道三国芦原線「三国港駅」まで徒歩8分と、交通の便が非常に良い立地です。
- 総合病院である坂井市立三国病院まで車で6分の距離にあり、緊急時にも安心です。
- 近隣には、徒歩2分のはちみつ屋や車で7分のAコープ ジェスタ イーザ店があり、日常の買い物に困りません。
- 360度画像URL:https://www.city.fukui-sakai.lg.jp/iju/akiya/bank321.html
日本有数の美しい夕陽が沈むサンセットビーチが見える4DKの物件。付近にはレストランやコンビニをはじめ、お菓子屋さんなどが徒歩圏内にあります。えちぜん鉄道三国港駅まで500mと駅やバス停などにもアクセスしやすい立地です。
家の1階には4帖の物置があり、広々とした収納スペースが確保されています。築50年が経過していますが、明るい光が差し込む清潔感のある和室でくつろいで過ごせそうです。
この物件についているタグ
この物件をシェアする
3分で完了
アキカツローン
購入シミュレーションをしてみる
関連サイトより、ローンの簡単シミュレーションができます。空き家の購入費用から、リフォーム・修繕費用など、不動産関連の様々な資金ニーズに対応可能です。
物件の特徴 POINT
【外観】
-
外観
【内観】
-
和室
基本情報 INFO
| 交通 | えちぜん鉄道三国芦原線 三国港駅 600m 徒歩8分 |
|---|---|
| 所在地 | 福井県坂井市三国町宿3丁目9-11(No.6-35) |
| 区分 | 売買 |
| 価格 | 売買700万円 |
| 管理費等(月) | - |
| その他費用 | 補修費用は入居者負担 |
| 現況 | 空家 | 引渡し 可能時期 |
相談 |
|---|---|---|---|
| 土地権利 | 所有権 | 地目 | 宅地 |
| 物件種別 | 土地・物件 | 間取り | 4DK |
| 構造 | 木造 | 築年月 | 1973(昭和48)年05月 (築50年) |
| 土地面積 | 167.330㎡(50.620坪) | 建物面積 | 99.400㎡(30.070坪) |
| 上水道 | 上水道 | 下水道 | 下水道 |
|---|---|---|---|
| ガス | プロパンガス | 電気 | - |
| その他設備 | - | ||
| 備考 | - | ||
周辺環境 MAP
| 小学校 | 雄島小学校区 | 中学校 | 三国中学校区 |
|---|---|---|---|
| 買い物 | はちみつ屋 140m 徒歩2分 Aコープ ジェスタ イーザ店 3.4km 車7分 |
その他施設 | 総合病院 坂井市立三国病院 2.6km 車6分 |
この物件をシェアする
3分で完了
アキカツローン
購入シミュレーションをしてみる
関連サイトより、ローンの簡単シミュレーションができます。空き家の購入費用から、リフォーム・修繕費用など、不動産関連の様々な資金ニーズに対応可能です。
この物件がある街情報 CITY
海と田畑に心くつろぐ子育ての拠点 福井県坂井市
福井県坂井市は福井の北側、石川寄りに位置しています。人口88,481人(令和2年国勢調査)が暮らす自然豊かなまちです。2024年3月に北陸新幹線が開業し、東京駅から3時間以内でアクセス可能です。関西方面からは新大阪経由のJR北陸本線が利用できます。石川県の小松空港まで車で30分程度でアクセスできるため、空路のアクセスもしやすいほか、車を利用する場合は、市の中心にある北陸自動車道丸岡ICを利用するのが便利です。
市の土地面積は34%が田畑、山林が30%を占め、市の西部は日本海に面しています。県内随一の広大な坂井平野では米、麦、そば、大豆や野菜、果物などが栽培されています。特産品は、越前がに、甘エビなどの海の幸を中心に、花らっきょうや油揚げ、トマトやすいかなどがあげられます。
坂井市は丸岡町・春江町・坂井町・三国町の4つの町が合併してできた市で、都市機能と自然が調和した住みよいまちです。近年子育て中の家族の転入が増えており、30代~40代の子育てや暮らしの拠点に選ばれています。
- 総人口
- 89,443人 (2022年12月2日現在)
- 世帯数
- 32,875世帯 (2022年12月2日現在)
- 面積
- 209.670K㎡
補助一覧表
| 補助 | 補助率 | 上限額 | 併用可否 | 詳細リンク |
|---|---|---|---|---|
| 空家改修支援事業費補助金 | 3分の1以内 | 130万円 | 可 | 令和7年度坂井市空家改修支援事業 |
| 空家取得支援事業費補助金 | 3分の1以内 | 130万円 | 可 | 令和7年度坂井市空家取得支援事業 |
| 【安心R住宅】空家取得支援事業費補助金 | 3分の1以内 | 230万円 | 【安心R住宅】令和7年度坂井市空家取得支援事業 | |
| 多世帯近居の中古住宅取得支援事業 | 3分の1以内 | 45万円 | 可 | 令和7年度坂井市多世帯近居の中古住宅取得支援事業 |
| 空家対策早期決断応援事業補助金 | 3分の1以内 | 20万円 | 可 | 令和7年度坂井市空家対策早期決断応援事業 |
空き家に関連がある支援制度を紹介しています。詳細等につきましては、各事業実施主体へご確認ください。