売買 【二世帯住宅にも最適】2階にもキッチン・風呂・トイレ完備(6-88)

所在地
福井県坂井市丸岡町磯部新保4-20-2
物件種別
土地・物件
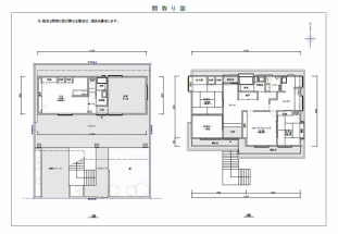
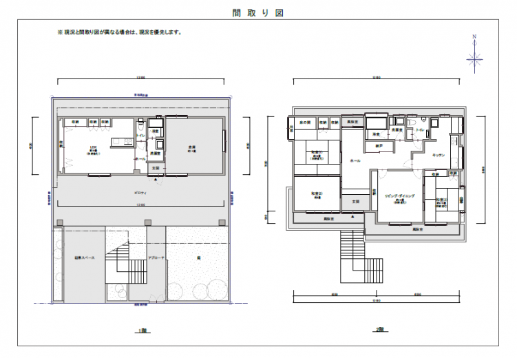
間取り
3LDK
価格
売買1200万円

POINT

  • 二世帯住宅としても利用可能! 1・2階それぞれに玄関・水回り完備で、家族でプライバシーを確保しながら暮らせる。
  • 冬も快適な床暖房付き! 1階に床暖房を完備しており、寒い季節も快適に過ごせる。
  • 広々としたリビング・ダイニング! 約16畳のLDKで、家族や友人との団らんの時間を楽しめる。
  • 360度画像URL:https://www.city.fukui-sakai.lg.jp/iju/akiya/bank374.html

静かな坂井市丸岡町に佇む、ゆとりのある二階建て住宅。1・2階それぞれに玄関や水回りを備え、二世帯住宅としても活用可能です。1階には床暖房があり、冬も快適。広々としたリビング・ダイニングは、家族の団らんや趣味の空間に最適です。庭付きでガーデニングを楽しめるほか、倉庫もあるため収納にも困りません。リフォームを施せば、快適な住まいはもちろん、シェアハウスや民泊としての活用も可能です。

この物件についているタグ

クリップボードにコピーしました

この物件をシェアする

3分で完了

アキカツローン
購入シミュレーションをしてみる

関連サイトより、ローンの簡単シミュレーションができます。空き家の購入費用から、リフォーム・修繕費用など、不動産関連の様々な資金ニーズに対応可能です。

この物件についてお問い合わせ

お問い合わせ番号 B000000922
お問い合わせ先情報 永和建設工業株式会社

物件の特徴 POINT

外観

  • 外観
    外観

1階玄関

  • 温かみのある玄関スペース
    温かみのある玄関スペース

    手すり付きでバリアフリー対応。広めの設計で出入りもスムーズです。

1階リビング

  • 広々としたリビング空間
    広々としたリビング空間

    大容量の収納付きでスッキリ暮らせる開放的なリビングです。

1階キッチン

  • 収納たっぷりの機能的なキッチン
    収納たっぷりの機能的なキッチン

    シンプルで使いやすいキッチン。対面式で家族との会話も弾みます。

1階水回り

  • 収納力のある洗面スペース
    収納力のある洗面スペース

    洗濯機置き場も完備。機能的で朝の支度もスムーズに。

  • 明るく清潔感のあるバスルーム
    明るく清潔感のあるバスルーム

    窓付きで換気も◎。ゆったり浸かれる快適なお風呂です。

  • 清潔感のあるシンプルなトイレ
    清潔感のあるシンプルなトイレ

    手すり付きで安全性も確保。奥行きのある落ち着いた空間です。

2階玄関・風除室

  • 独立した2階玄関
    独立した2階玄関

    1階とは別の玄関があり、二世帯住宅や賃貸活用も可能です。

  • 雨風を防ぐ風除室付き
    雨風を防ぐ風除室付き

    雨の日も快適に出入りできる便利な風除室を完備。

2階リビングダイニング

  • 光あふれる広々リビングダイニング
    光あふれる広々リビングダイニング

    和室とつながる開放的な空間。大きな窓があり、明るい陽射しが心地よい空間です。

2階和室

  • 風情ある和の空間
    風情ある和の空間

    昔ながらの趣を感じる和室。

  • くつろぎの和室空間
    くつろぎの和室空間

    家族や友人との団らんに最適な和室です。

2階キッチン

  • 眺めの良い明るいキッチン
    眺めの良い明るいキッチン

    大きな窓から光が差し込む開放的なキッチン。収納も豊富で使いやすい

2階廊下

  • 開放感のあるゆったりとした廊下
    開放感のあるゆったりとした廊下

    収納スペースが充実し、奥行きのある広々とした廊下です。

2階水回り

  • レトロな雰囲気の浴室
    レトロな雰囲気の浴室

    大きな窓があり換気も良好。レトロなデザインが特徴的なバスルームです。

  • ゆとりのある広めのトイレ
    ゆとりのある広めのトイレ

    小便器付きで便利な設計。窓があり換気もしやすく、清潔感があります。

ピロティ・倉庫

  • 雨の日も安心なピロティ付き駐車場
    雨の日も安心なピロティ付き駐車場

    屋根付きで大切な車を守れる駐車スペース。倉庫や作業場としての活用も可能です。

  • 収納や作業スペースにも使える倉庫
    収納や作業スペースにも使える倉庫

    広めの倉庫は趣味の作業場や保管スペースとして活用可能。

基本情報 INFO

交通 ハピラインふくい線「春江」駅 4.4km 車 9分
所在地 福井県坂井市丸岡町磯部新保4-20-2
区分 売買
価格 売買1,200万円
管理費等(月) -
その他費用 -
現況 空き家 引渡し
可能時期
相談
土地権利 所有権 地目 宅地
物件種別 土地・物件 間取り 3LDK
構造 木造2階建て 築年月 1990年(平成2年)11月
土地面積 230.750㎡(69.800坪) 建物面積 163.850㎡(49.570坪)
上水道 上水道 下水道 下水道
ガス プロパンガス 電気
その他設備 1、2階にそれぞれ玄関、水回り、(トイレ、風呂、キッチン)あり。1階に床暖房あり。
備考 ・電気、電話の故障なし。エアコンは不明。
・給湯器は使用1年ほど。
・1階に庭あり。
・駐車台数1台(軽自動車の場合、縦列に2 台まで可)
・多少の補修必要(入居者負担)

周辺環境 MAP

小学校 坂井市立磯部小学校区 中学校 坂井市立丸岡南中学校区
買い物 スーパー 650m
コンビニ 500m
ドラッグストア 600m
ホームセンター 700m
その他施設 幼稚園 4.3km
認定こども園 1.1km
小学校 600m
中学校 2.1km
病院 2.2km
郵便局 850m
銀行 2.3km

この物件をシェアする

3分で完了

アキカツローン
購入シミュレーションをしてみる

関連サイトより、ローンの簡単シミュレーションができます。空き家の購入費用から、リフォーム・修繕費用など、不動産関連の様々な資金ニーズに対応可能です。

この物件についてお問い合わせ

お問い合わせ番号 B000000922
お問い合わせ先情報 永和建設工業株式会社

この物件がある街情報 CITY

海と田畑に心くつろぐ子育ての拠点 福井県坂井市

福井県坂井市は福井の北側、石川寄りに位置しています。人口88,481人(令和2年国勢調査)が暮らす自然豊かなまちです。2024年3月に北陸新幹線が開業し、東京駅から3時間以内でアクセス可能です。関西方面からは新大阪経由のJR北陸本線が利用できます。石川県の小松空港まで車で30分程度でアクセスできるため、空路のアクセスもしやすいほか、車を利用する場合は、市の中心にある北陸自動車道丸岡ICを利用するのが便利です。

市の土地面積は34%が田畑、山林が30%を占め、市の西部は日本海に面しています。県内随一の広大な坂井平野では米、麦、そば、大豆や野菜、果物などが栽培されています。特産品は、越前がに、甘エビなどの海の幸を中心に、花らっきょうや油揚げ、トマトやすいかなどがあげられます。

坂井市は丸岡町・春江町・坂井町・三国町の4つの町が合併してできた市で、都市機能と自然が調和した住みよいまちです。近年子育て中の家族の転入が増えており、30代~40代の子育てや暮らしの拠点に選ばれています。

総人口
89,443人 (2022年12月2日現在)
世帯数
32,875世帯 (2022年12月2日現在)
面積
209.670K㎡

補助一覧表

補助 補助率 上限額 併用可否 詳細リンク
空家改修支援事業費補助金 3分の1以内 130万円 令和7年度坂井市空家改修支援事業
空家取得支援事業費補助金 3分の1以内 130万円 令和7年度坂井市空家取得支援事業
【安心R住宅】空家取得支援事業費補助金 3分の1以内 230万円 【安心R住宅】令和7年度坂井市空家取得支援事業
多世帯近居の中古住宅取得支援事業 3分の1以内 45万円 令和7年度坂井市多世帯近居の中古住宅取得支援事業
空家対策早期決断応援事業補助金 3分の1以内 20万円 令和7年度坂井市空家対策早期決断応援事業

空き家に関連がある支援制度を紹介しています。詳細等につきましては、各事業実施主体へご確認ください。